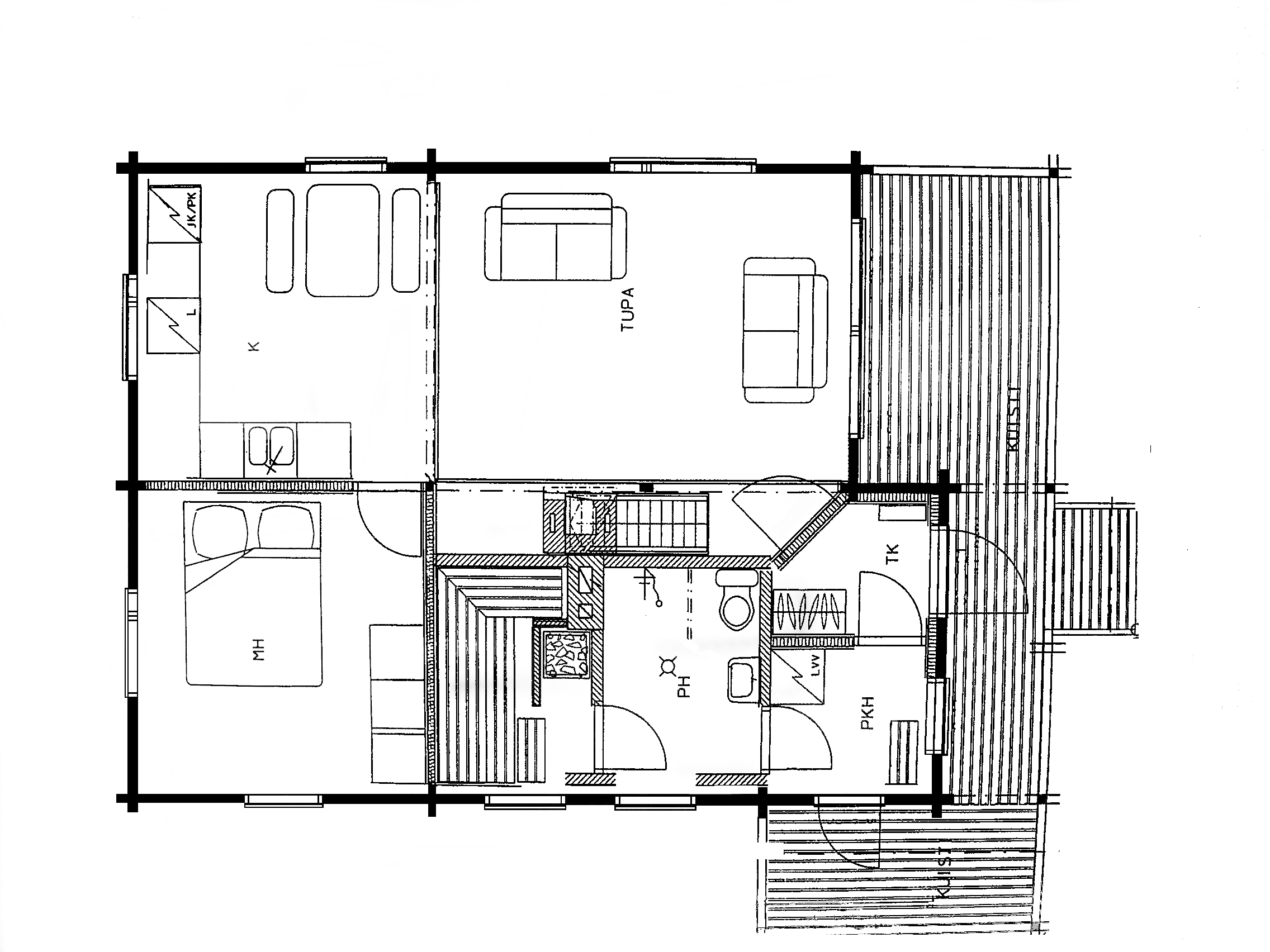
Takaisin KUUSI /